Document de cours des élèves de 2 TU pour l'année 2016 / 2017

2 TU 2016 / 2017

*****************************

Technologie:

Lundi de 13h30 à 14h30 (1h).

Mardi de 15h30 à 16h30 (1h).

Jeudi de 10h25 à 12h15 (2h).

****************************

Semaine 36:

Lundi 5 septembre, première séance de technologie avec la classe de 2 TU.

Découvrir la productique....

Mouvement des éléments sur un tour et une fraiseuse.

Vidéo de tournage "Tournage 2mm52s"

Dossier " étude d'une vidéo de tournage "

Semaine 40:

Contrôle sur la vidéo d'usinage pour le jeudi 6 octobre 2016

Début étude de fabrication, Axe rotation X gauche.

Semaine 41:

Etude de fabrication en tournage. Etude 2, Dossier "Axe pignon tendeur". Questions de 1 à 4 uniquement.

Exo sur les tolérance "ISO 2668 fH", REP 9, Axe rotation X droit Parabole motorisée.

Fiche de suivi de production.

Semaine 42/43/44 .....Vacances

Semaine 45 à ....

Etude en partie du TP13 S4

Rep 113 repérage des surfaces

Contrat de phase pour REP 113

Contrôle semaine 45:

Plan pour le repérage "REP 111" (sans le chanfreins)

Plan de détail "REP 111"

Contrat de phase à compléter (sans les chanfrein)

Fiche de suivi de production.

Evaluation "Contrat de phase", Rep 111 de l'imprimante 3D

Plan de définition.

Correction avec, Fiche de suivi de production, Repérage des surfaces, contrat de phase.

Semaine 48

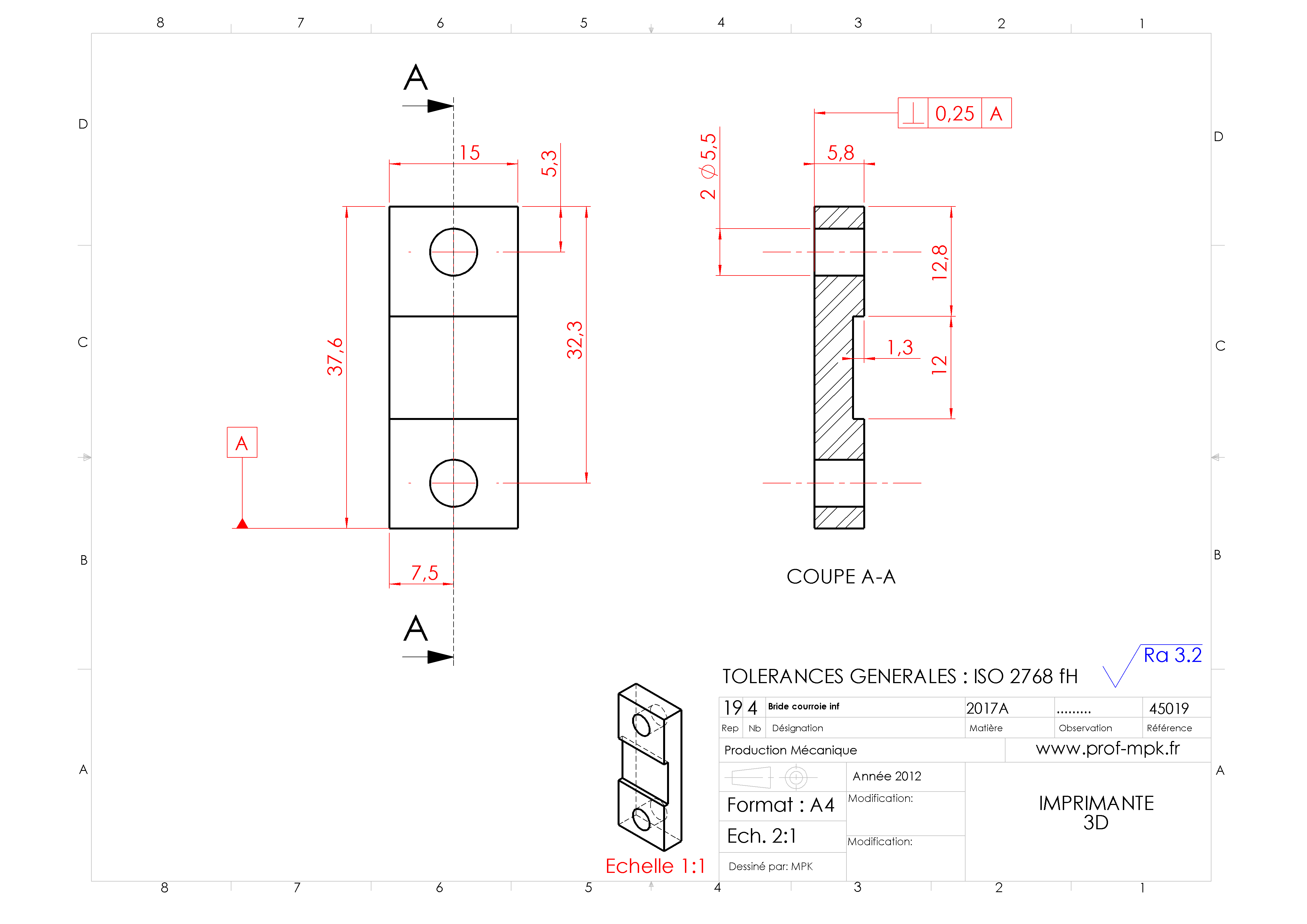
Etude de fabrication: REP 19, Bride courroie (Imprimante 3D)

Doc 1, Doc 2, Doc 3.

Semaine 49

Début de correction "Zone dessin", Contrat de phase "REP 19, Imprimante 3D"

Evaluation "Paramètres de coupe"

2016

VACANCES DE NOEL

2017

 

Semaine 01, Janvier 2017

Etude " Tolérances Géomètriques"

Norme ISO 2768.

Les spécifications géométriques: Doc prof / Doc élèves

Perpendicularité: Doc prof / Doc élèves

Parallélisme: Doc prof / Doc élèves

Diaporam: Spécification géométrique: Diaporama

Semaine 02

TOLERANCE GEOMETRIQUE

EXO 1 (parallélisme et perpendicularité)

EXO 2 (parallélisme et perpendicularité)

Applications contrôles géomètriques.

REP 15, Blocage roulement Axe , Parabole motorisée

REP 10, Axe rotation X gauche, Parabole motorisée

Semaine 04

Etude de fabrication

REP 19, Parabole motorisée

Semaine 05

Evaluation sur les contrôles géométriques, Jeudi 2 février 2017.

On demande, Pièce d'étude pour le contrôle (REP 1)

 

Semaine 6, 7 à 15

Coaxialité: doc prof / doc élèves

Etudes:

REP 19 imprimante 3D, repérage surfaces, Avec talon,

Correction phase REP 19

Dossier d'étude: Cylindre de chauffe du moteur Stirling.

Constitution du dossier:

Plan d'ensemble, dessin de définition, A.P.E.F.

Nomenclature de phase, contrat de la phase 10, fiche outil de la phase 10.

Contrat de la phase 20, fiche outil de la phase 20.

Semaine 13

Etude de fabrication, Support bloc moteur (Scie santeuse)

Semaine 15

Etude de fabrication, Support module extrudeur (Imprimante 3D)